
APPLICATION: MEASURING THE TOTAL VOLUME OF COLD POTABLE WATER PASSING THROUGH THE METER.
SPECIALITY:
☆ THE HARDENED GLASS
☆ HIGH ACCURACY AND LARGE MEASURING RANGE
☆ NEGLIGIBLE HEAD LOSS AT WORKING FLOW-RATE
☆ MAGNET DRIVE WITH ANTI-MAGNETIC
☆ HIGH-QUALITY MATERIAL WITH LONG LIFE OF SERVICE
☆ RELIABLE IN DATA COLLECTING , HERMETICALLY SEALED REGISTER
☆ THE REGISTER IS SEALED AND IT COULD BE IN ANY POSITION
WITHIN 360°,CONVENIENT FOR INSTALLATION.
WORKING CONDITION:
☆ THE MAX. ADMISSIBLE WATER PRESSURE: 1.6MPa
☆ WATER TEMPERATURE: WATER TEMP UP TO 50℃
Maximum permissible error:
Between qt (included) and qs is ±2%;
Between qmin and qt (excluded) is ±5%.
NOTE: The technical data conform to ISO4064 standard, class B.
FLOW-ERROR CURVE
SPECIFICATION AND OVERALL DIMENSIONS
Description |
Unit |
Hydraulic data and dimensions |
Nominal size |
mm(inch) |
DN15(1/2”) |
DN20(3/4”) |
Overload flow-rate (qs) |
m3/h |
2 |
3 |
Permanent flow-rate (qp) |
m3/h |
1 |
1.5 |
Transitional flow-rate (qt) |
l/h |
80 |
120 |
Minimum flow-rate (qmin) |
l/h |
20 |
30 |
Min. reading |
l |
0.05 |
0.05 |
Max. reading |
m3 |
99999.9999 |
99999.9999 |
Max. working pressure |
MPa |
1.6 |
1.6 |
ΔP at the qs |
MPa |
≤0.1 |
≤0.1 |
L |
mm |
165 |
190 |
I |
mm |
245 |
290 |
H |
mm |
135 |
135 |
h |
mm |
36.5 |
36.5 |
B |
mm |
94 |
94 |
D |
inch |
G3/4B |
G1B |
d |
inch |
R1/2 |
R3/4 |
Weight |
with counections |
Kg |
1.49 |
1.75 |
without counections |
1.29 |
1.45 |
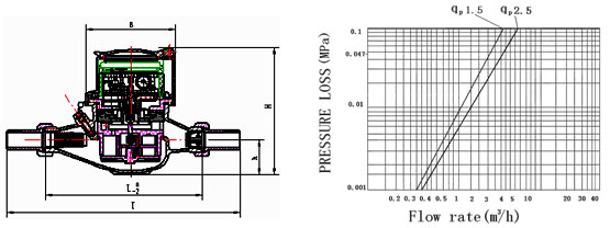
OVERALL DIMENSIONS PRESSURE LOSS CURVE |